CIÒ CHE MANCA AL TUO STUDIO
Odousi G.M.S. sas a Torino realizza e progetta il tuo Studio Dentistico accompagnandoti in tutte le sue fasi
SCOPRI I NOSTRI SERVIZI
PROGETTAZIONI E REALIZZAZIONI DI STUDI DENTISTICI “CHIAVI IN MANO”
Odousi GMS sas vi accompagna in tutte le fasi che riguardano la realizzazione del vostro studio dentistico e, grazie alle molteplici competenze acquisite e alla collaborazione ormai consolidata con studi di architettura di nostra totale fiducia, lavoriamo per il raggiungimento delle soluzioni più efficaci.
I NOSTRI SERVIZI...
PROGETTAZIONI E REALIZZAZIONI DI STUDI DENTISTICI “CHIAVI IN MANO”
Odousi GMS sas vi accompagna in tutte le fasi che riguardano la realizzazione del vostro studio dentistico e, grazie alle molteplici competenze acquisite e alla collaborazione ormai consolidata con studi di architettura di nostra totale fiducia, lavoriamo per il raggiungimento delle soluzioni più efficaci.
CASE STUDY
Il nostro obiettivo è lo studio e l’ottimizzazione degli spazi tenendo conto delle vostre esigenze tecniche e di immagine, per ottenere un ambiente funzionale ed elegante.
Il tutto unito ad un’attenzione per la sicurezza e la qualità dei prodotti.
Ci impegniamo a fornire tutte le competenze e le prestazioni necessarie in modo da consegnarvi l’opera ultimata “chiavi in mano”, completa e pronta per l’inizio della vostra attività.
CASE STUDY
Il nostro obiettivo è lo studio e l’ottimizzazione degli spazi tenendo conto delle vostre esigenze tecniche e di immagine, per ottenere un ambiente funzionale ed elegante.
Il tutto unito ad un’attenzione per la sicurezza e la qualità dei prodotti.
Ci impegniamo a fornire tutte le competenze e le prestazioni necessarie in modo da consegnarvi l’opera ultimata “chiavi in mano”, completa e pronta per l’inizio della vostra attività.
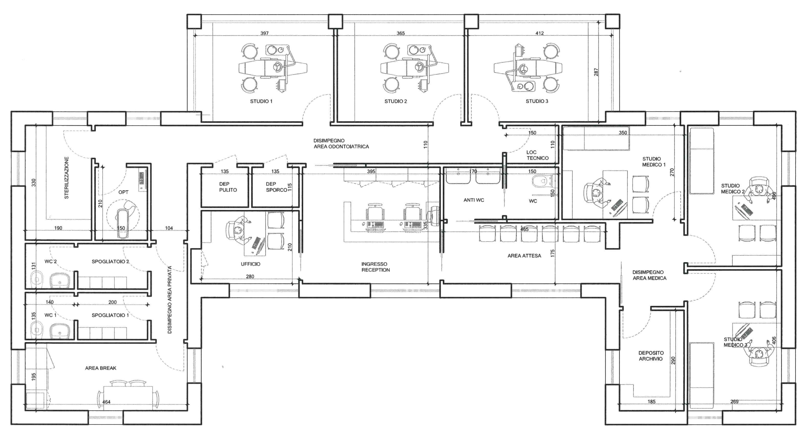
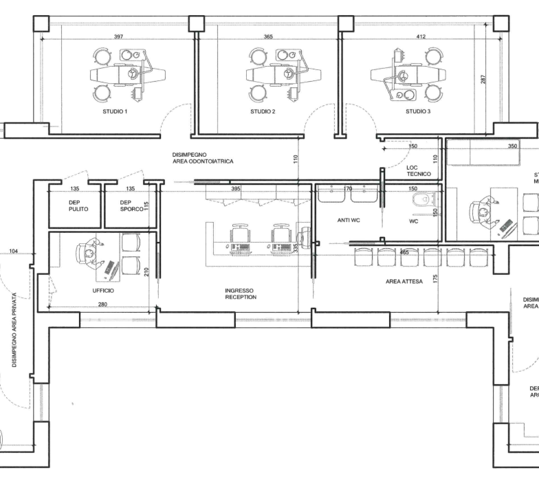
ANALISI PRELIMINARE
RISULTATO FINALE
ANALISI PRELIMINARE
RISULTATO FINALE
PERSONALIZZATO?
PERSONALIZZATO?
Altri servizi...
Altri servizi...
ASSISTENZA TECNICA PRE E POST VENDITA PER IL TUO STUDIO DENTISTICO
Con il suo personale tecnico interno, Odousi G.M.S. sas vi offre un servizio di assistenza, pre e post vendita, completo e puntuale per il vostro studio.
I nostri tecnici esperti si occupano del montaggio, dell’installazione, della manutenzione e della riparazione di tutte le attrezzature odontoiatriche dello studio, costantemente aggiornati e autorizzati dalle aziende fornitrici.
Installiamo tutte le tipologie di attrezzature odontoiatriche a regola d’arte con collaudo finale e scolarizzazione del personale.
Per le apparecchiature di radiologia digitale, i nostri tecnici vi guideranno nella scelta dell’hardware e dei software più adatti alle vostre esigenze e vi aiuteranno nella gestione, durante l’installazione, della vostra rete interna e nell’intervento in remoto ogni qualvolta si presenti la necessità.
I nostri tecnici esperti si occupano del montaggio, dell’installazione, della manutenzione e della riparazione di tutte le attrezzature odontoiatriche dello studio, costantemente aggiornati e autorizzati dalle aziende fornitrici.
Installiamo tutte le tipologie di attrezzature odontoiatriche a regola d’arte con collaudo finale e scolarizzazione del personale.
Per le apparecchiature di radiologia digitale, i nostri tecnici vi guideranno nella scelta dell’hardware e dei software più adatti alle vostre esigenze e vi aiuteranno nella gestione, durante l’installazione, della vostra rete interna e nell’intervento in remoto ogni qualvolta si presenti la necessità.
Vi offriamo un SERVIZIO DI PRESTITO MULETTI.
Per aspiratori, compressori, autoclavi ed altre attrezzature per darvi la possibilità di proseguire il normale andamento del vostro lavoro qualora sia necessario.
Vi offriamo un SERVIZIO DI PRESTITO MULETTI.
Per aspiratori, compressori, autoclavi ed altre attrezzature per darvi la possibilità di proseguire il normale andamento del vostro lavoro qualora sia necessario.
RIPARAZIONE DI STRUMENTI E ATTREZZATURE PER IL TUO STUDIO DENTISTICO
Ci occupiamo della riparazione di strumenti ed attrezzature dello studio offrendo un SERVIZIO PRESTITO MULETTI per darvi la possibilità di proseguire il normale andamento del vostro lavoro e limitare al minimo l’eventuale disagio.
Pensiamo noi a tutte le pratiche per la spedizione presso le rispettive case madri o a nostre aziende certificate di massima fiducia.
In ogni caso, tutte le riparazioni sono precedute dalla formulazione di un preventivo scritto inviato via mail.
RIPARAZIONE DI STRUMENTI E ATTREZZATURE PER IL TUO STUDIO DENTISTICO
Ci occupiamo della riparazione di strumenti ed attrezzature dello studio offrendo un SERVIZIO PRESTITO MULETTI per darvi la possibilità di proseguire il normale andamento del vostro lavoro e limitare al minimo l’eventuale disagio.
Pensiamo noi a tutte le pratiche per la spedizione presso le rispettive case madri o a nostre aziende certificate di massima fiducia.
In ogni caso, tutte le riparazioni sono precedute dalla formulazione di un preventivo scritto inviato via mail.
